Disposición 4.410/02  
  ...........................................................................................................................................................................................................................................................................  
     
   
     
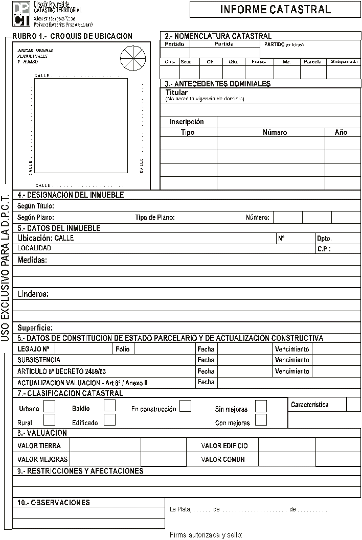
  | Ver Informe Catastral |

La Plata, 29 de agosto de 2002

Visto lo establecido en el inciso 1° del artículo 58° de la Ley 12.576 - Impositiva 2002 - y;

CONSIDERANDO:

Que por la aludida norma legal se modifica el Punto III del artículo 3° de la Ley 10.295, texto según el artículo 60° de la Ley 12.397, tasando el servicio por Informe Catastral".

Que a partir de tal regulación legal ante las diversas formas en que se ha venido prestando dicho servicio, resulta necesario crear un único modelo de formulario para producir la información.

Que no ocioso recordar que la información a que se alude precedentemente es todo a aquella que no requiere la agregación de copias de documentos catastrales (Cédulas, Planchetas, Formularios de Avalúo)

Por ello,

EL DIRECTOR PROVINCIAL DE CATASTRO TERRITORIAL
DISPONE

Artículo 1°: Apruébase el formulario de "Solicitud e Informe Catastral", que como Anexo I pasa a formar parte integrante de la presente.

Artículo 2°: El formulario aprobado por el artículo 1° entrará en vigencia a partir de la registración de la presente.

Artículo 3°: Regístrese. Dése al Boletín Oficial para su publicación. Circúlese. Cumplido archívese.

Zunilda Cristina López
Director Provincial de Catastro Territorial
Ministerio de Economía

Informe Catastral